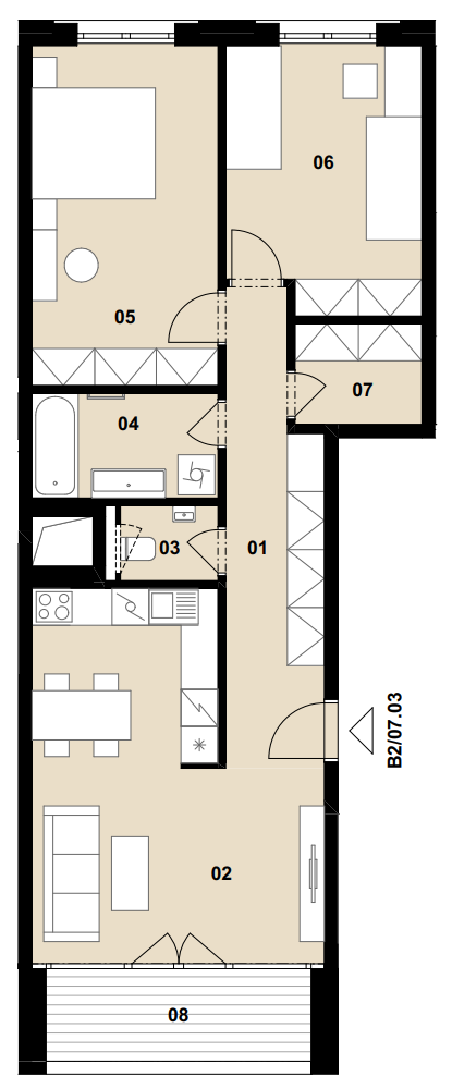
B2.07.03

ID B2.07.03
Dispozice 3+kk
Celková podlahová plocha 80 m2
Balkon 6 m2
Cena celkem vč. DPH 12 112 000 Kč
Stav K dispozici

3+kk

01 CHODBA 11,5 m2
02 OBÝVACÍ POKOJ 23,8 m2
03 WC 1,9 m2
04 KOUPELNA 5,1 m2
05 LOŽNICE 16,7 m2
06 POKOJ 13,3 m2
07 KOMORA 3,3 m2
Celková vnitřní užitná plocha 75,7 m2
Celková podlahová plocha 80,3 m2
08 LOĎŽIE 6,4 m2

Nezávazná rezervace

    Kontaktujte nás

    Chcete se dozvědět víc? Kontaktujte nás, rádi Vám poradíme.

    Developer a prodejce

    Naše další projekty

    Rezidence Floriánka

    Brno

    Projekt Rezidence Floriánka přináší moderní bytový komplex s pestrou nabídkou dispozic 1+kk až 4+kk. Byty jsou navrženy s důrazem na...

    Zobrazit projekt

    Bydlení Kutnohorská

    V rámci našeho nového projektu vznikne rezidenční soubor, který zájemcům o bydlení nabídne 38 rodinných domů a také jeden...

    Zobrazit projekt

    Rezidence Pod Kotlářkou

    Praha

    Pražské Košíře patří mezi tradiční, a přitom stále se rozvíjející části města. Oblasti si uchovala svůj klidný, rezidenční charakter, přestože...

    Zobrazit projekt

    Kanceláře Palác Trnitá

    Brno

    Krásné kanceláře s výhledem na historické centrum Brna. Pracovní zázemí v centru Brna s výbornou...

    Zobrazit projekt

    Centrum Hostivice

    Hostivice

    Projekt Centrum Hostivice nabídne bytové jednotky s dispozicemi 1+kk až 4+kk, vybere si tak opravdu...

    Zobrazit projekt

    Rezidence Chodovec

    Praha 4

    Projekt Rezidence Chodovec má co nabídnout. V rámci výstavby vzniknou jak rodinné, tak i bytové domy. Vybírat si můžete z dispozic 1+kk...

    Zobrazit projekt

    Rodinné domy Satalice

    Praha 9

    Developerský projekt RD Satalice se nachází ve stejnojmenné městské části na ulici Trabantská. Satalice se stávají velmi vyhledávaným místem pro...

    Zobrazit projekt

    Výhledy Řeporyje

    Praha 5

    Projekt Výhledy Řeporyje nabídne celkem 162 bytových jednotek s dispozicemi 1+kk až 5+kk, vybere si tak opravdu každý. Parkovací místa...

    Zobrazit projekt